Nyma Pro Close Coupled Doc M Pack For Toilet With Exposed Fixings – Steel – White – DM200K/WH
Add this Nymas Pro close couple Doc M toilet pack to your bathroom today and maintain your independence at home, the pack is also popular and suitable for public spaces and nursing homes. You will have everything you need in this pack to use the toilet and basin independently.
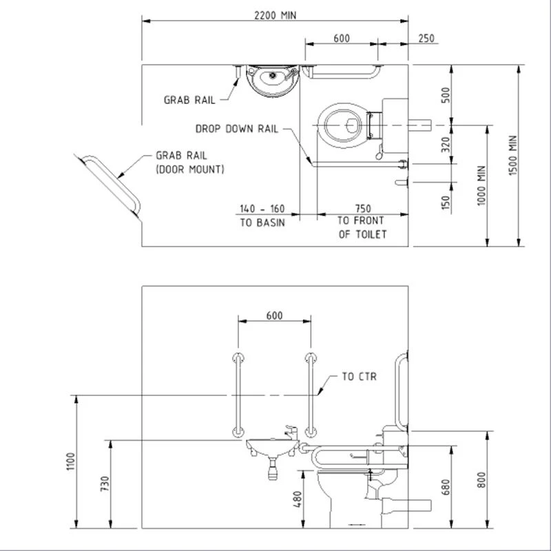
You will have a firm hand grip with the 4 grab rails that are included in the pack, we can be sure you will feel supported and secure when moving from one position to another or standing up and down. Complete with a large, hinged support rail with built in toilet roll holder that can be lifted out of the way when not in use.
Crouching to sit on the toilet is a thing of the past, the specially designed high toilet will make it easier for you when transferring on and off the toilet seat. Constructed from vitreous china, the toilet will withstand the test of time.
The lower than usual cistern is easy to use, it is at a comfortable height whether you are using your hand, elbow or other parts of your body to flush the toilet.
Take advantage of the wall hung basin and choose your preferred height, allowing you to relieve the pressure when washing your hands. Wall hung basins are great for wheelchair users, the minimal pedestal allows you to get closer to the basin taps to wash hands and can be positioned closer to the toilet. Like the toilet, the basin is made from vitreous china, only the highest quality of materials are used, maintaining to long life span and easy to keep clean and hygienic.
Doc M Packs wouldn’t be complete with-out a decent basin tap. The lever tap control allows you to effortlessly turn the tap on and off with a smooth operation. A dripping tap wouldn’t be a thing with this pack, the reliable ceramic cartridge will prevent that as well as adjusting your perfect water temperature and flow you need.
Lastly, this toilet pack is Doc M compliant and WRAS approved, this gives you the confidence that you are investing in the highest of qualities and ensures it is built for maximum confort in mind. Most importantly it conforms with building regulations.
Key Features
- Colour – White
- Easy to clean and install
- No electrical earthing required
- Essential for any disabled area
- Complies with Part M of the Building Regulations
- Doc M Compliant
- WRAS approved inlet valve and syphon
- Material – Stainless Steel
What Is Included
- 5 x 600mm coated steel grab rails with exposed fixings
- 1 x 800mm coated steel hinged support rail with toilet roll holder
- 1 x Close coupled box rim Doc M pan
- 1 x Close coupled cistern with fittings and Doc M spatula lever (optional Doc M push button – DMCCPB/** only)
- 1 x Ring only toilet seat
- 1 x Two tap hole basin
- 1 x Sequential basin mixer tap
- 1 x Tap hole stopper
- 1 x Basin waste
- 1 x TMV3 Valve (DMCC/** only)
Dimensions
- Hinged Support Rail – 200x100x800mm
- Basin Tap – 121x42x101mm
- Cistern Lever – 39x131x39mm
- Basin – 175x450x300mm
- Toilet Seat – 360x440mm
- Toilet – 860x380x785mm
- Straight Grab Rails – 420x79x92mm















Reviews
There are no reviews yet.